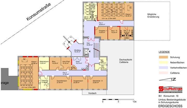
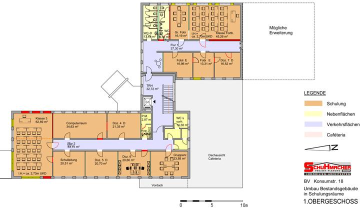
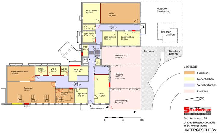
Objekt
WUPPERTAL - Konsumstraße 18 - Fertigstellung 2022
Neu- + Umbau
DIAKONIE-AKADEMIE Ausbildung Alten- + Krankenpflege
BAUHERR : Diakonische Altenhilfe Wuppertal gGmbH
- 9 Schulungsräume
- Neubau Mehrzweckraum
- 16 Büroräume
- diverse Nebenräume
Nettoflächen:
Bestandsgebäude 1850,00 m²
Anbau 150,00 m²
Bruttorauminhalt:
Bestandsgebäude 6900 m³
Anbau 819 m³
Abmessungen:
Ostflügel 16,50 m x 12,5 m
Westflügel 28,00 m x 11,0 m
Anbau 17,50 m x 9,00 m

