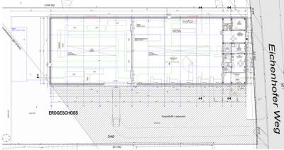
Objekt
WUPPERTAL - Eichenhofer Weg 25 A - Fertigstellung 2021
NEUBAU = Halle Produktion + Lager und Büro
BAUHERR : Seibert GbR
Abmessungen:
- 20,48 m x 60,48 m, H = 7,00 m
Nutzflächen:
- Produktion 557,60 m²
- Lager 660,40 m²
- Büro + Nebenräume 242,90 m²

