Referenzen

REMSCHEID - Lehmkuhle 7

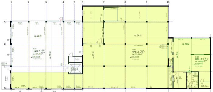
REMSCHEID - Lehmkuhle 7

Gewerbe - Objekt

REMSCHEID - Lehmkuhle 7 - Vermietet 2022

HALLE ca. 770 m²
Rampe
Kräne 3 x
Sozial = inklusive
Büro = möglich
Parkplätze

 

Lehmkuhle7b2
Lehmkuhle7b3
Lehmkuhle7b4
Lehmkuhle7b5

Folgen Sie uns auf Social Media!

Bleiben Sie immer informiert und verpassen Sie keine Neuigkeiten mehr. Folgen Sie uns auf Facebook und LinkedIn für exklusive Inhalte und spannende Updates. Wir freuen uns auf Ihre Likes und Kommentare!

  • Facebook
  • Linkedin

SCHUHMACHER
Standort-Entwicklung GmbH

Lützowstraße 267
42653 Solingen
Telefon: 0212 59 01 02
E-Mail:

QR-Code

Phone Icon