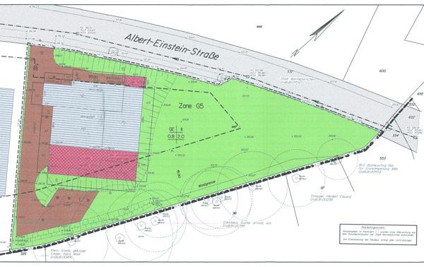
Gewerbe - Objekt
WERMELSKIRCHEN - Albert-Einstein-Straße 24 = Verkauft = 2015
Grundstück 1.144 m² zuzüglich Wald 2.138 m²
Büro + Sozial ca. 200 m²
Halle / Lager ca. 430 m²
zuzüglich Nebenflächen
Bleiben Sie immer informiert und verpassen Sie keine Neuigkeiten mehr. Folgen Sie uns auf Facebook und LinkedIn für exklusive Inhalte und spannende Updates. Wir freuen uns auf Ihre Likes und Kommentare!
![]()

Wir stehen Ihnen gerne zur Verfügung.
Kontaktieren Sie uns einfach unter der folgenden Telefonnummer: