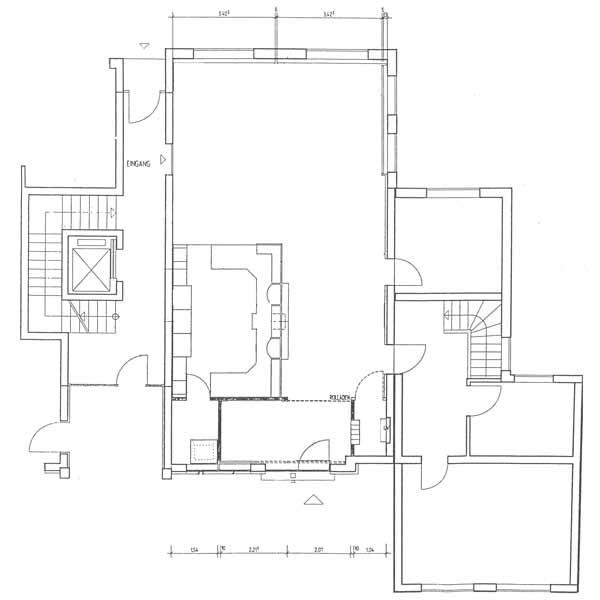
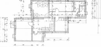
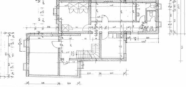
Gewerbe - Objekt
SOLINGEN - Neuenhofer Straße 4-6 = Vermietet = 2010
Erdgeschoss ca. 150 m²
Untergeschoss ca. 100 m²
6 Stellplätze
ehemalige Commerzbank Filiale
Bleiben Sie immer informiert und verpassen Sie keine Neuigkeiten mehr. Folgen Sie uns auf Facebook und LinkedIn für exklusive Inhalte und spannende Updates. Wir freuen uns auf Ihre Likes und Kommentare!
![]()

Wir stehen Ihnen gerne zur Verfügung.
Kontaktieren Sie uns einfach unter der folgenden Telefonnummer: