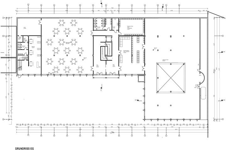
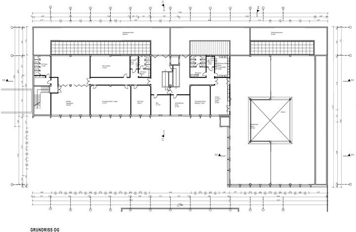
Objekt
WUPPERTAL - Lenneper Straße 37-39
Neu- +Umbau Gemeindezentrum
BAUHERR : Islamische Gemeinde Wuppertal
|
|
Nutzflächen: |
|
Gemeindesaal |
1.178,12 m2 |
|
Tagungen |
140,39 m2 |
|
Schulungen |
144,71 m2 |
|
Bibliothek |
136,19 m2 |
|
Veranstaltung |
448,26 m2 |
|
Verwaltung |
115,81 m2 |
|
Nebenräume |
430,77 m2 |
|
Abmessungen: |
|
|
Breite |
75,40 m |
|
Tiefe |
22,875 m - 41,015 m |
|
Höhe |
7,78 m |

