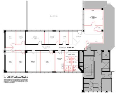
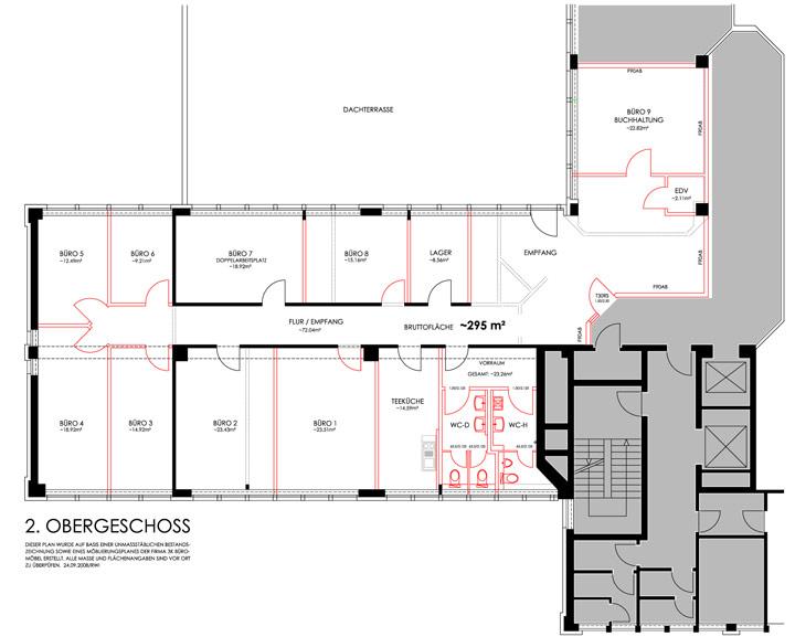
Objekt
SOLINGEN - Konrad-Adenauer-Straße 2
Neu- Ausbau / Umbau
Büro-Etagen
Bleiben Sie immer informiert und verpassen Sie keine Neuigkeiten mehr. Folgen Sie uns auf Facebook und LinkedIn für exklusive Inhalte und spannende Updates. Wir freuen uns auf Ihre Likes und Kommentare!
![]()

Wir stehen Ihnen gerne zur Verfügung.
Kontaktieren Sie uns einfach unter der folgenden Telefonnummer: